Výška radiátora. montáž technických potrubí a zariadení. aké
Existujú dva typy vykurovacích telies z hľadiska inštalácie - podlahy a steny, preto druhá možnosť znamená, že treba dodržať určitú montážnu výšku radiátora z podlahy, čo umožní bez problémov pripojenie k vykurovaciemu systému.


Malo by sa okamžite povedať, že ak čakáte na jasné pokyny k tomuto parametru, je to márne, pretože jednoducho neexistujú a hlavne závisí od inštalácie vykurovacieho okruhu a od výšky okenných parapetov a napokon od výšky úseku , Aj keď nie je možné povedať, že tento parameter nemá žiadny rozdiel, čo navrhujeme, aby ste sa teraz pozreli a tiež pozerať na video v tomto článku.
Montáž technických potrubí a zariadení
Odporúčania. Pri inštalácii systému, ak rozmery vykurovacích radiátorov vo výške a dĺžke umožňujú ich inštaláciu pod oknami, urobte práve to. Batéria pod oknom vytvára druh tepelnej clony, čo obmedzuje tok studeného vzduchu zo strany skla.

- Takže, v akej výške od podlahy inštalovať radiátory, položené pri zapojení vykurovacieho okruhu, a to tiež závisí od toho, či máte vložené čerpadlo obehového čerpadla. Ak bude systém fungovať bez nátlaku, je úplne prirodzené, že cez potrubie by mal byť sklon, čo znamená, že potrebujete ponechať priestor na sklon spätného potrubia, ak je systém dvojtrubkový alebo prívodné potrubie, ak je to jedno potrubie.
- V "Leningrad" (jeden potrubný systém pre 3-4 radiátory) sú batérie tiež umiestnené s poklesom, pretože v takýchto prípadoch nevytvárajú špeciálny kohútik pre ohrievač - okruh prechádza priamo cez spodnú stranu.
- Rôzne systémy a inštalácia naznačujú, že ak sa delíte o 10-15 cm od podlahy, montážna výška radiátorov podľa SNiP 3.05.05-84 ("Technologické zariadenia a potrubia") bude normálna pre všetky obvody. Presnejšie, samotný okruh by mal byť namontovaný tak, aby bolo možné dodržať tieto parametre.
Aké sú obrysy

Celkovo existujú dva typy obvodov chladiča - jednorádiová a dvojrúrková a všetko ostatné je modifikáciou existujúceho systému, či už je to zmiešaný (vykurovacie telesá pod podlahou) alebo kolektorový vykurovací systém. V každom z týchto prípadov inštrukcia vyžaduje použitie jedného alebo druhého okruhu, jednoducho sa tu vyrábajú rôzne doplnky vo forme sanitárneho zariadenia vo forme trojcestných alebo štvorcestných ventilov a hrebeňov.
Ak sa používa systém s jedným potrubím, ako v hornom schémach, potom je celé médium na prenos tepla v jednej rúrke - opúšťa kotol na napájanie a tiež sa vráti a prepravuje už chladenú vodu na vykurovanie.
Radiátory sa na ňu narazia pozdĺž cesty a typ pripojenia tu nemá absolútne žiaden rozdiel - pod stĺpikom, tepelným alebo núteným tlakom, voda, ktorá prechádza výstupmi, vstupuje do nich a prechádza cez batériu a vracia sa späť do potrubia.
Problémom je, že chladiaca kvapalina, ktorá prešla vykurovacím zariadením, už stráca svoju predchádzajúcu teplotu, takže čím ďalej sa mierne ochladzuje a tým viac spotrebičov v takomto systéme, tým ochladenom, bude, odďaľuje sa od kotla.

Aby bolo možné vykurovacie teleso rozobrať počas vykurovacieho obdobia bez vypustenia vody, pred ním je namontovaný obtok - to je rúrka, ktorá slučuje systém a je viditeľná na hornej fotografii a uzatváracie ventily sú umiestnené pred samotnou batériou.
Okrem pomoc pri demontáži, pričom obtokový čiastočne prispieva k teplote konzervačného chladiva, pretože voda prechádza cez to, minie chladič. Ale MDU zariadenie je niekedy zneužívaná - dať na neho a prekrývajú ventilu, prechádza celý tok cez chladič, teda tí, ktorí žijú neupravené dlhšie ako studenou vodou.

Pri dvojrúrkovom systéme nie je problém s chladením, presnejšie to existuje, ale závisí len od dĺžky samotnej rúry a vo všeobecnosti sa ukazuje tak nevýznamné, že sa ani nevenuje pozornosť - v centralizovaných systémoch sú linky chránené tepelnou izoláciou a tam sú straty sú minimálne.
Ide o to, že horúca chladiaca kvapalina preteká potrubím na všetky radiátory, ale chladená voda, ktorá preteká batériou, sa nevráti, ale je vypúšťaná do spätného potrubia, čím sa zachová počiatočná teplota v celom obvode bez ohľadu na to, koľko bodov ,
Existuje však jedna výhrada - cena za inštaláciu a prevádzku bude o niečo vyššia, pretože po prvé sa pridá druhá rúrka a za druhé je potrebné zohriať viac vody a parametre zariadenia nezáleží, môže to byť výška radiátorov 250 mm alebo 1200 mm.
Poznámka. Ak existuje potreba spoločného pripojenia radiátorov a podlahového vykurovania, potom sa používa dvojrubkový systém, ale pred obvodom vodného podlažia je inštalovaný trojcestný termostatický ventil, ktorý v závislosti od teploty prerozdeľuje chladiacu kvapalinu.
Pravidlá inštalácie

Všetky štyri schémy pripojenia vykurovacieho telesa, ktoré vidíte na hornom obrázku, sú použiteľné pre jednorúrkové a dvojrúrkové vykurovacie systémy - metóda, ktorú použijete, závisí skôr od umiestnenia obvodu.
Pri autonómnych jednootrubových vykurovacích systémoch sa však uprednostňuje buď spodné alebo spodné pripojenie, ale je to jednoducho kvôli jednoduchosti inštalácie a nie viac. Navyše, výška hliníkových radiátorov (alebo z iného kovu) môže ovplyvniť vašu voľbu - ako sme už povedali, všetko sa znižuje na ergonómiu.

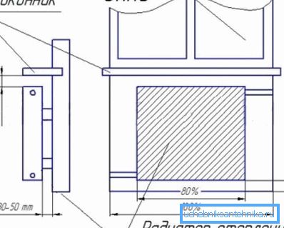
Ak vyberiete vykurovacie telesá s výškou 800 mm, potom v 99% prípadov sa nezmestia pod okná, pretože je potrebné ustúpiť nielen z podlahy, ale aj z okenného parapetu minimálne 10 cm, preto sa takéto ohrievače častejšie používajú ako teplé scenérie na stenách.
Preto je najbežnejšia výška bimetalových radiátorov vykurovania 600 mm - takže môžete udržiavať vzdialenosť od podlahy a okenného parapetu, aj keď nič vám nebráni v používaní zariadení s výškou 400 alebo 500 mm.

Okrem toho, nastavenie kúrenie pod oknom, je potrebné vziať do úvahy nielen to, ako vysoko zavesiť radiátory, ale aj odchýliť od steny k medzere nie je menšia ako? hĺbky zariadenia - inak, prenos tepla bude značne podceňovaný.
A znova by som sa rád vrátil do výšky - ak sa vám podarí, skúste vydržať 12 cm od podlahy, ale pamätajte, že ak je táto vzdialenosť menšia ako 10 cm alebo viac ako 15 cm, potom znova výrazne podceňujete vplyv prenosu tepla.

V prípade, že sa inštalácia neuskutoční pod oknami, napríklad inštalácia podlahových spotrebičov, ako na hornej fotografii (tu je výška vykurovacích radiátorov 400 mm), potom by sa mala odstrániť aspoň 20 cm zo steny.
záver
Vo väčšine prípadov, inštalácia ohrev vody vlastnými rukami, každý sa pokúša umiestniť vykurovacie zariadenia pod okná, preto používajú najbežnejšiu výšku - 500-600 mm. To však vôbec neznamená, že musíte dodržiavať tieto štandardy.